| 物件名 | 草加市谷塚1丁目 |
|---|---|
| 物件種別 | 医療モール |
| 募集科目 | 内科系 外科系 整形外科 小児科 皮膚科 眼科 耳鼻咽喉科 産科・婦人科 心療内科 泌尿器科 |
| 住所 | 〒340-0028 埼玉県草加市谷塚1-5-15※計画物件のため近隣建物住所で表記ししています。 |
| アクセス | 東武伊勢崎線「谷塚」駅より徒歩3分 |
| 構造 | お問い合わせください |
| 築年数 | 2027年上旬 |
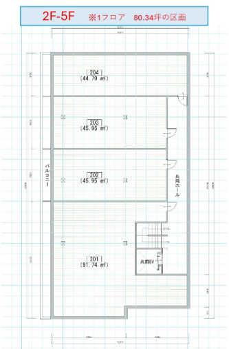
| 募集区画 | 4区画 |
|---|---|
| 2階~5階 | |
| 面積 | 各階80.34坪 |
| 賃料 | 18,000円/坪(消費税別) |
| 管理・共益費 | お問い合わせください |
| 月額賃料合計 | お問い合わせください |
| 敷金 | お問い合わせください |
|---|---|
| 礼金 | お問い合わせください |
| 共益費内訳 | お問い合わせください |
| 契約期間 | お問い合わせください |
| 保証金 | お問い合わせください |
| 明け渡し | スケルトン渡し予定 |
| 設備 | お問い合わせください |
| 引き渡し時期 | お問い合わせください |
| 既テナント | 1階:調剤薬局予定 |
| 備考 | |
| コメント | 東武伊勢崎線「谷塚」駅より徒歩3分 駅より徒歩圏に新築される医療ビル計画 ワンフロアも広く自由度がある 人流動線のある路面の角地にあり認知されやすい環境 |
| 物件画像 | |
|---|---|
|
|
| 物件画像 | |
|
|
| 周辺地図 | |
|
|