| 物件名 | 京成津田沼 |
|---|---|
| 物件種別 | 単独開業(戸建・テナント) |
| 募集科目 | 内科系 外科系 整形外科 小児科 皮膚科 眼科 耳鼻咽喉科 産科・婦人科 心療内科 泌尿器科 |
| 住所 | 〒275-0016 千葉県習志野市津田沼5-11-10 |
| アクセス | 京成電鉄「京成津田沼」駅より徒歩2分 |
| 構造 | 鉄筋コンクリート造 |
| 築年数 | お問い合わせください |
| 募集区画 | 2区画 |
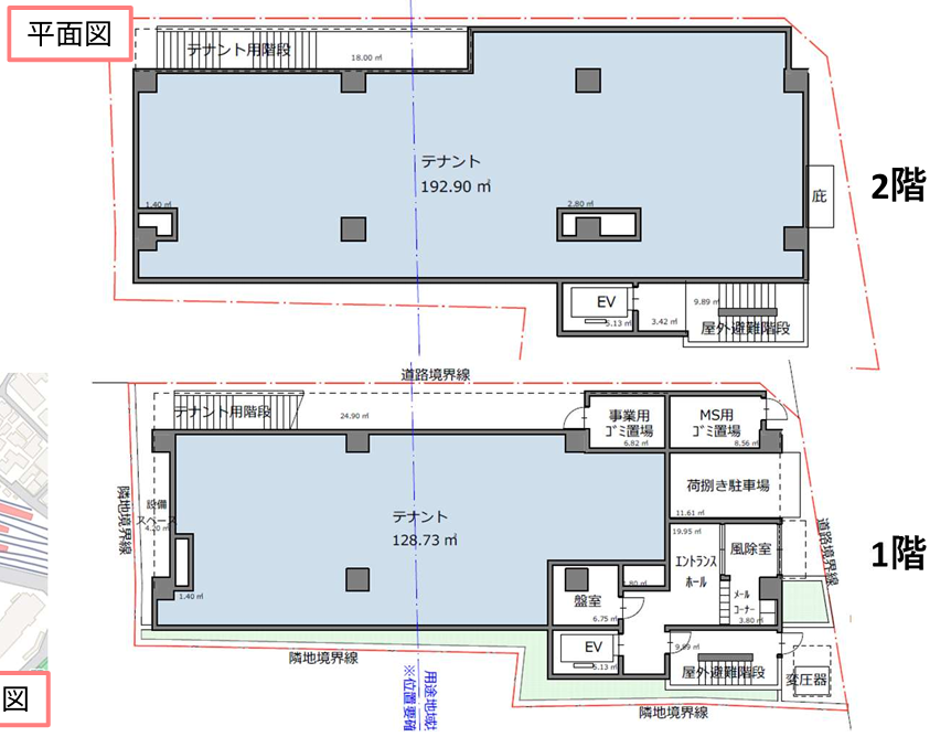
|---|---|
| 1階 | |
| 面積 | 38.49坪 |
| 賃料 | お問い合わせください |
| 管理・共益費 | お問い合わせください |
| 月額賃料合計 | お問い合わせください |
| 2階 | |
| 面積 | 58.35坪 |
| 賃料 | お問い合わせください |
| 管理・共益費 | お問い合わせください |
| 月額賃料合計 | お問い合わせください |
| 敷金 | お問い合わせください |
|---|---|
| 礼金 | お問い合わせください |
| 共益費内訳 | お問い合わせください |
| 契約期間 | お問い合わせください |
| 保証金 | お問い合わせください |
| 明け渡し | スケルトン渡し予定 |
| 設備 | お問い合わせください |
| 引き渡し時期 | お問い合わせください |
| 既テナント | |
| 備考 | 地上6階建て 3階以上は住居の予定 |
| コメント | 京成電鉄「京成津田沼」駅より徒歩2分 駅前の主要道路に面した視認性の良い好立地 既存建物解体後の新築プランです。 ※時期等はお問い合わせください |
| 物件画像 | |
|---|---|
|
|
| 物件画像 | |
|
|
| 周辺地図 | |
|
|