| 物件名 | フジモール吹上 |
|---|---|
| 物件種別 | 単独開業(戸建・テナント) |
| 募集科目 | 整形外科 小児科 皮膚科 眼科 産科・婦人科 心療内科 泌尿器科 |
| 住所 | 〒369-0131 埼玉県鴻巣市袋90-1 |
| アクセス | JR高崎線「吹上」駅より徒歩20分 |
| 構造 | 鉄骨造 |
| 築年数 |
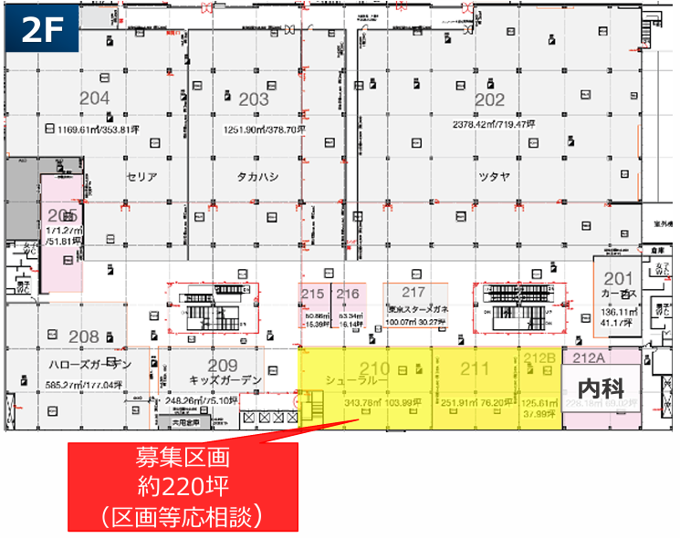
| 募集区画 | 1区画 |
|---|---|
| 2階 | |
| 面積 | 約220坪 |
| 賃料 | 6,000円/坪(消費税別) |
| 管理・共益費 | お問い合わせください |
| 月額賃料合計 | お問い合わせください |
| 敷金 | 6か月 |
|---|---|
| 礼金 | お問い合わせください |
| 共益費内訳 | お問い合わせください |
| 契約期間 | 定期建物賃貸借契約 |
| 保証金 | 無 |
| 明け渡し | スケルトン渡し予定 |
| 設備 | 駐車場完備 |
| 引き渡し時期 | お問い合わせください |
| 既テナント | 1階:生鮮スーパー、ドラッグストア、電気屋、歯科 2階:100均一、衣料品、フィットネスなど 内科開業済み |
| 備考 | 駐車場1,000台以上 |
| コメント | JR高崎線「吹上」駅より徒歩20分 郊外型の商業施設内のテナント 内科開業済み盛業中 |
| 物件画像 | |
|---|---|
|
|
| 物件画像 | |
|
|
| 周辺地図 | |
|
|