| 物件名 | クリニックステーション獨協大学前 |
|---|---|
| 物件種別 | 医療モール |
| 募集科目 | 整形外科 皮膚科 眼科 産科・婦人科 心療内科 泌尿器科 |
| 住所 | 〒340-0041 埼玉県草加市松原2-1-2※計画物件のため近隣建物住所で表記ししています。 |
| アクセス | 東武伊勢崎線「獨協大学前」駅より徒歩5分 |
| 構造 | お問い合わせください |
| 築年数 |
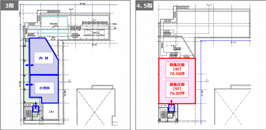
| 募集区画 | 2区画 |
|---|---|
| 4階 | |
| 面積 | 76.00坪 |
| 賃料 | 12,000円/坪(消費税別) |
| 管理・共益費 | 賃料に含む |
| 月額賃料合計 | お問い合わせください |
| 5階 | |
| 面積 | 76.00坪 |
| 賃料 | 11,000円/坪(消費税別) |
| 管理・共益費 | 賃料に含む |
| 月額賃料合計 | お問い合わせください |
| 敷金 | 6か月 |
|---|---|
| 礼金 | お問い合わせください |
| 共益費内訳 | お問い合わせください |
| 契約期間 | 10年 |
| 保証金 | 無 |
| 明け渡し | スケルトン渡し予定 |
| 設備 | EVあり |
| 引き渡し時期 | 即入居可能 |
| 既テナント | 1階:調剤薬局予定 フィットネス、飲食店 2階:透析クリニック予定 3階:小児科開院、内科開院予定 |
| 備考 | 仲介手数料あり |
| コメント | 東武伊勢崎線「獨協大学前」駅より徒歩4分 獨協大学を中心に、居住地としても発展している立地であり、住環境としても大きな公園を配した人気のエリア。 再開発計画も進んでおり、直近では、1,300戸数の大型マンション計画もあり。 今後も人口増加が見込まれる。 団地を周遊する人流導線もある路面医面した立地のため認知も視認性も良好な環境 |
| 物件画像 | |
|---|---|
|
|
| 物件画像 | |
|
|
| 周辺地図 | |
|
|