| 物件名 | (仮)八千代中央ヘルスケアステーション |
|---|---|
| 物件種別 | 医療モール |
| 募集科目 | 内科系 外科系 整形外科 小児科 眼科 耳鼻咽喉科 産科・婦人科 泌尿器科 |
| 住所 | 〒276-0042 千葉県八千代市ゆりのき台3-5-1(仮)八千代中央ヘルスケアステーション |
| アクセス | 東葉高速鉄道「八千代中央」駅より徒歩3分 |
| 構造 | 鉄筋コンクリート造 |
| 築年数 | 2021年3月竣工予定 |
| 募集区画 | 5区画 |
|---|---|
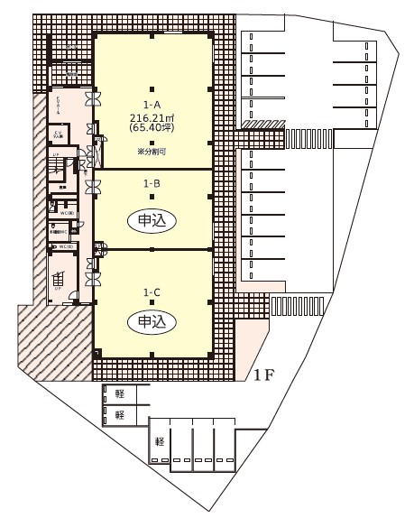
| 1A | |
| 面積 | 65.40坪 |
| 賃料 | 1,151,040円(消費税込み) |
| 管理・共益費 | 215,820円(消費税込み) |
| 月額賃料合計 | 1,366,860円(消費税込み) |
| 2A | |
| 面積 | 50.13坪 |
| 賃料 | 716,856円(消費税込み) |
| 管理・共益費 | 165,429円(消費税込み) |
| 月額賃料合計 | 882,285円(消費税込み) |
| 2B | |
| 面積 | 49.07坪 |
| 賃料 | 701,701円(消費税込み) |
| 管理・共益費 | 161,931円(消費税込み) |
| 月額賃料合計 | 863,632円(消費税込み) |
| 3B | |
| 面積 | 49.07坪 |
| 賃料 | 593,747円(消費税込み) |
| 管理・共益費 | 161,931円(消費税込み) |
| 月額賃料合計 | 755,678円(消費税込み) |
| 3C | |
| 面積 | 50.13坪 |
| 賃料 | 606,573円(消費税込み) |
| 管理・共益費 | 165,429円(消費税込み) |
| 月額賃料合計 | 772,002円(消費税込み) |
| 敷金 | 無 |
|---|---|
| 礼金 | 賃料の1か月分 |
| 共益費内訳 | お問い合わせください |
| 契約期間 | 3年契約 普通賃貸借契約 |
| 保証金 | 賃料の6か月分 |
| 明け渡し | スケルトン渡し |
| 設備 | EVあり 駐車場20台 |
| 引き渡し時期 | 竣工後引き渡し可能 |
| 既テナント | 1階 調剤薬局、事務所 2階 メンタル・皮膚科クリニック 3階 フィットネスジム |
| 備考 | 家財保険要加入 保証会社応相談 駐車場20台は共用使用となります |
| コメント | 東葉高速鉄道「八千代中央」駅より徒歩3分 駅前につながる主要道路の角地に位置し、視認性も認知性も高い好立地 ベットタウンとして正中する八千代中央駅は年々利用者数も増加し戸建て、集合住宅も増加傾向 八千代中央駅乗降客数:23,944人/日(2018年度統計) 隣接する生鮮スーパーは2店舗、ドラッグストア2店舗、100円均一、郵便局、銀行等地域住民の集まるエリアに新築される 駅近の物件でありながら、地域ニーズに合う駐車場も20台配しており利便性も高い |
| 物件画像 | |
|---|---|
|
|
| 物件画像 | |
|
|
| 物件画像 | |
|
|
| 周辺地図 | |
|
|